
電動鎖氣翻板卸灰閥概述
DSF電動鎖氣翻板卸灰閥普遍適用于建材、冶金、石化、電力等行業。作為各類除塵設備的灰斗鎖氣卸灰裝置,及各種磨機、烘干機、料倉、筒庫和閉式輸送系統等的鎖氣、卸灰裝置。電動鎖氣翻板卸灰閥結構特點
DSF電動鎖氣翻板卸灰閥為凸輸、連桿傳動,彈簧自動復位機械。具有結構緊湊、設計合理、運行平穩,卸灰、鎖氣可靠。且兼有間歇喂料和控制輸料斗功能,是各種給、卸料工況的理想設備。
 
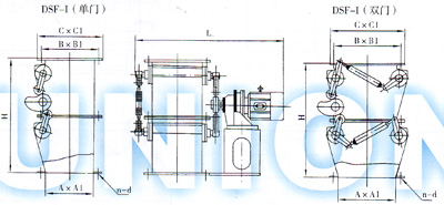
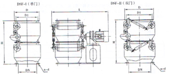
外形安裝尺寸
1、方口形外形圖
 
 
2、圓口形外形圖
 
 
南通聯源機電科技股份有限公司
? 2022 南通聯源機電科技股份有限公司   		 		
蘇公網安備 32062102000184號  
備案號: 蘇ICP備15030594號-1  
技術支持: 天正企劃